Bedaux de Brouwer
Bedaux de brouwer afscheidshof luwendal rijsbergen 2680 impressie kleine aula

Afscheidshof Luwendal Rijsbergen

Afscheidshof Luwendal wordt een betekenisvolle plek in de natuur waar men op persoonlijke wijze afscheid kan nemen van een naaste. 

In de landelijke omgeving van Rijsbergen ligt het voormalige klooster van Bethanië; een ensemble van gebouwen dat in 1942 met beperkte middelen werd gebouwd in opdracht van de zusters Dominicanessen van Bethanië. Het ruime perceel, dat tussen natuurgebieden Vloeiweide en Pannenhoef is gelegen, biedt een unieke kans om een afscheidslocatie te realiseren waar het natuurlijke landschap troost en berusting zal bieden voor nabestaanden. Er is tenslotte een groeiende behoefte aan persoonlijke, betekenisvolle uitvaartrituelen waar men ‘teruggegeven kan worden aan de natuur’. 

Het klooster wordt getransformeerd en op fijngevoelige wijze uitgebreid waarbij iedere ontwerpkeuze in dienst staat van die natuurlijke beleving. Nabestaanden ervaren hier de weelderigheid van de natuur, niet zozeer de architectuur zelf. Die is ingetogen en verstild. 

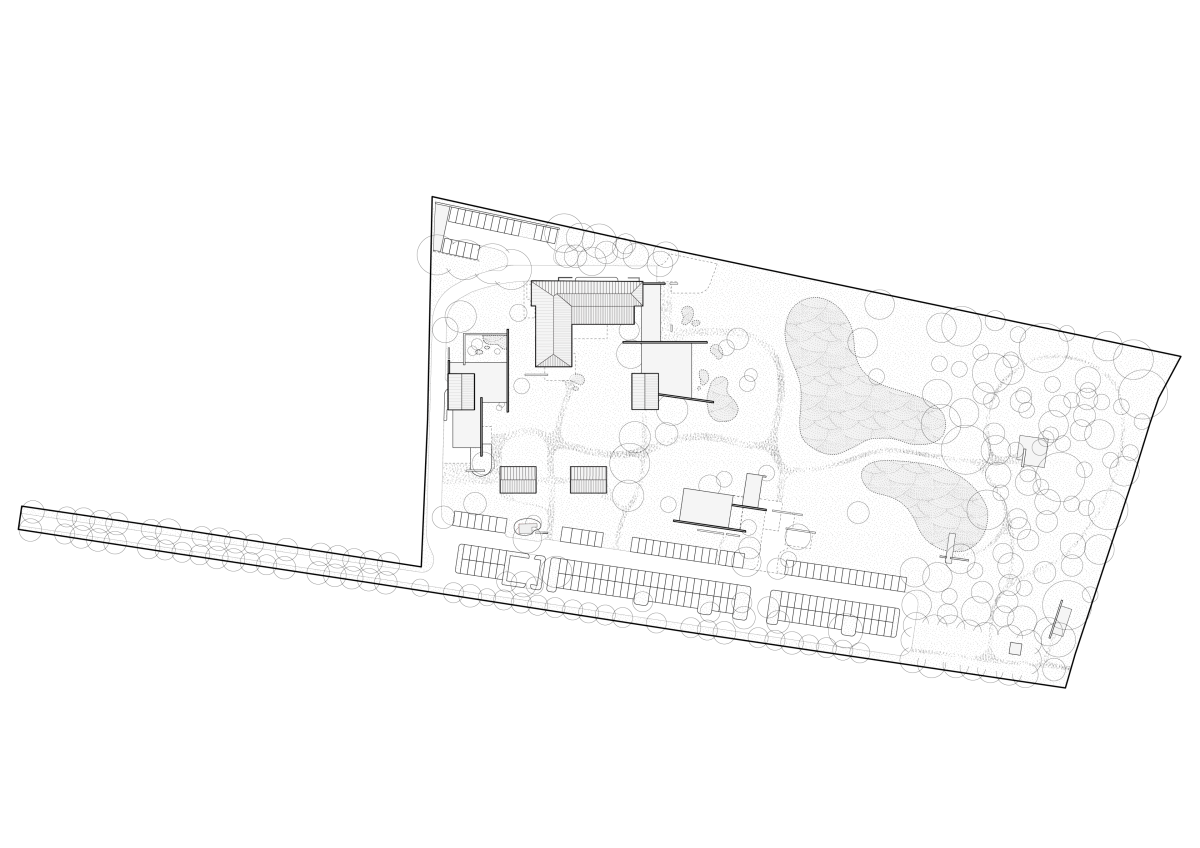
De bestaande gebouwen omsluiten een hof waarvan de entree gemarkeerd wordt door twee gedenkkapellen. Aan het afscheidshof liggen twee ceremoniële ruimtes: de Kleine Aula die zicht biedt op een intieme binnentuin en de Grote Aula met een weids uitzicht op heide, vennen en bomen. Verderop ligt het Laatste Afscheid ingebed in het maaiveld waar de overledene gecremeerd of geresomeerd (watercrematie) zal worden. 

In het landschap biedt de uitstrooivlonder ruimte om as uit te strooien boven het ven en tussen de bomen is er ruimte om as te begraven of een beschutte buitenceremonie te houden. Daarnaast is het vanaf deze plek mogelijk om een wandeling te maken naar de omliggende natuurgebieden. Het ontwerp voor Luwendal is een wereld van tuinmuren waar het landschap als een glooiend tapijt tussendoor beweegt. De gebouwen staan los in het landschap, óp de route die de overledene en nabestaanden afleggen door de natuur. Landschap, architectuur en interieur zijn hier in grote samenhang vormgegeven. 

De bestaande gebouwen worden geabstraheerd tot een nieuwe, plastische massa van baksteen door nieuwe kozijnen met een diepe negge aan te brengen, gevelopeningen te vergroten en de donker gemetselde gevels te voorzien van een cementsluier. De nieuwbouw ligt verdiept in de grond en kenmerkt zich door lichtvoetige glasvlakken en gemetselde tuinmuren met dezelfde cementsluier die het zicht naar buiten begeleiden. De tuinmuren worden als middel ingezet om een geleidelijke overgang te creëren tussen het gebouwde en het natuurlijke, tussen binnen en buiten. Iedere ruimte heeft een eigen, verbijzonderde atmosfeer waar op verschillende wijze het uitzicht wordt gekaderd en het daglicht binnenvalt. Bestaande bouw en nieuwbouw vormen een nieuwe harmonie en zijn met de ambachtelijke materialen, gevelgroen en daktuinen een verlengstuk van de buitenruimte. 

Afscheidshof Luwendal is veel meer dan een laatste afscheid; het is een landschap voor herinnering waar nabestaanden naar terug kunnen keren om hun dierbaren blijvend te herinneren. 

Bedaux de brouwer afscheidshof luwendal rijsbergen 280 situatietekening
Bedaux de brouwer afscheidshof luwendal rijsbergen 2680 isometrie vogelvlucht
Bedaux de brouwer afscheidshof luwendal rijsbergen 2680 plattegrond nieuw
Bedaux de brouwer afscheidshof luwendal rijsbergen 2680 foto bestaand
bestaande situatie
Bedaux de brouwer afscheidshof luwendal rijsbergen 2680 impressie grote aula
nieuwe situatie
Bedaux de brouwer afscheidshof luwendal rijsbergen 280 doorsnede kleine aula
doorsnede Kleine Aula
Bedaux de brouwer afscheidshof luwendal rijsbergen 2680 impressie laatste afscheid

Projectgegevens

Opdrachtgever SoMa Vastgoed BV
Aannemer Maas-Jacobs Bouw
Ontwerp In voorbereiding